recherche immobilières sur mobile

Location Appartement Bavilliers 2 pièces 41 m2 Belfort (90800) - 522 € / mois

location appartement 2 pièces 41 m² région Belfort

522 €/mois


Location Appartement 2 pièces BAVILLIERS 90800
Annonce Location 2 pièces Appartement Bavilliers 90

Description

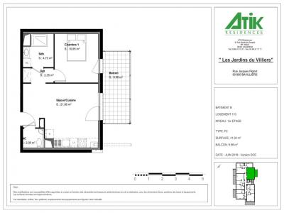
A BAVILLIERS, dans la résidence LES JARDINS DU VILLIERS , nous vous proposons un appartement T2 N° B110 situé au 1er étage d'une superficie de 41.94m² comprenant : une pièce de vie avec cuisine aménagée et équipée (plaque, hotte, four, lave vaisselle) ouverte sur séjour et donnant sur un balcon de 9.98m², une chambre de 10.95m², une salle d'eau avec douche et meuble vasque, WC séparés. Chauffage et eau chaude en individuel gaz. Eau froide, entretien parties communes, entretien ascenseur et espaces verts communs, compris dans les provisions sur charges mensuelles et donnant lieu à une régularisation annuelle. Les honoraires de location TTC (à la charge du locataire) incluent le montant de rédaction des états des lieux facturé pour 127 euros TTC, après réalisation de l'entrée dans les lieux. Pour plus de détails sur ce logement, vous pouvez consulter la fiche descriptive de ce bien sur notre site internet AFEDIM. Disponibilité au 01/04/2026 Les informations sur les risques auxquels ce bien est exposé sont disponibles sur le site Géorisques :
Retour
Autres photos
Plan
Favoris

Contacter l'agence

CM - CIC GESTION IMMOBILIERE
2 rond point des AntonsBP70904
44703 ORVAULT

Toutes les annonces immobilières de CM - CIC GESTION IMMOBILIERE
08.09.10.28.80


Recevoir des annonces similaires

Location à proximité de Bavilliers