recherche immobilières sur mobile

Location Appartement Quesnoy-sur-deule 2 pièces 43 m2 Nord (59890) - 679 € / mois

location appartement 2 pièces 43 m² région Nord

679 €/mois


Location Appartement 2 pièces QUESNOY-SUR-DEULE 59890

Description

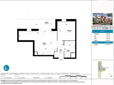
A QUESNOY SUR DEULE dans la résidence neuve L'EXCLUSIF nous vous proposons un appartement de type T2 n°11 de 43.70M². Situé au 1er étage, il comprend : un hall, un séjour/cuisine aménagée et équipée donnant sur balcon de 12.37m², une chambre et une salle de bains avec WC. Un emplacement de stationnement P23. Eau chaude individuelle et chauffage Individuel gaz. Eau froide individuelle. Entretien parties communes, entretien ascenseur et espaces verts communs, compris dans les provisions sur charges mensuelles et donnant lieu à une régularisation annuelle. Les honoraires de location 568.00 euros TTC (à la charge du locataire) incluent le montant de rédaction des états des lieux facturé pour 131,00 euros TTC, après réalisation lors de l'entrée dans les lieux. Pour plus de détails sur ce logement, vous pouvez consulter la fiche descriptive de ce bien, sur notre site internet AFEDIM. Les informations sur les risques auxquels ce bien est exposé sont disponibles sur le site Géorisques :
Retour
Autres photos
Plan
Favoris

Contacter l'agence

CM-CIC GESTION IMMOBILIERE
2 Rond Point des Antons CS70304
44703 ORVAULT

Toutes les annonces immobilières de CM-CIC GESTION IMMOBILIERE
08.09.10.28.80 ou 08.10.00.69.36


Recevoir des annonces similaires

Location à proximité de Quesnoy-sur-deule