recherche immobilières sur mobile

Location Appartement Saint-jean-de-la-ruelle 2 pièces 45 m2 Loiret (45140) - 595 € / mois

location appartement 2 pièces 45 m² région Loiret

595 €/mois


Location Appartement 2 pièces SAINT-JEAN-DE-LA-RUELLE 45140

Description

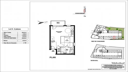
A ST JEAN DE LA RUELLE, dans la résidence neuve DU LEVAIN, nous vous proposons un logement T2 N°9 de 45m² au 1er étage du bâtiment. Il se compose d'un séjour/cuisine donnant sur un balcon de 5m², une chambre, une salle d'eau et un WC. Au sous-sol, un emplacement de stationnement. Eau chaude et chauffage individuels électriques. Entretien des parties communes et espaces verts communs, compris dans les provisions sur charges mensuelles et donnant lieu à une régularisation annuelle. Les honoraires de location TTC (à la charge du locataire) incluent le montant de rédaction des états des lieux facturé pour 135 euros TTC, après réalisation lors de l'entrée dans les lieux. Disponibilité prévisionnelle au 31/12/2025. Pour plus de détail sur ce logement, vous pouvez consulter la fiche descriptive de ce bien, sur notre site internet AFEDIM. Logement neuf en cours de construction Les informations sur les risques auxquels ce bien est exposé sont disponibles sur le site Géorisques :
Retour
Autres photos
Plan
Favoris

Contacter l'agence

CM-CIC GESTION IMMOBILIERE
2 Rond Point des Antons CS70304
44703 ORVAULT

Toutes les annonces immobilières de CM-CIC GESTION IMMOBILIERE
08.09.10.28.80 ou 08.10.00.69.36


Recevoir des annonces similaires

Location à proximité de Saint-jean-de-la-ruelle