recherche immobilières sur mobile

Location Appartement Sallanches 2 pièces 55 m2 Haute savoie (74700) - 707 € / mois

location appartement 2 pièces 55 m² région Haute savoie

707 €/mois


Location Appartement 2 pièces SALLANCHES 74700
Annonce Location 2 pièces Appartement Sallanches 74

Description

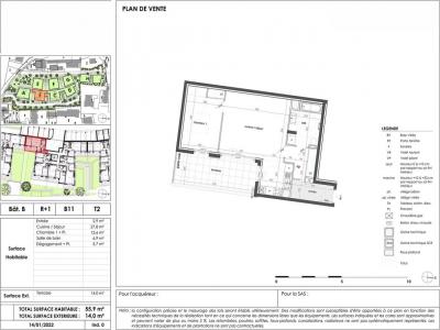
A SALLANCHES, nous vous proposons dans la résidence LES HAUTS DE LA COLLEGIALE, un appartement T2 de 55.90m². Situé au 1e étage du bâtiment B, il comprend une entrée, un séjour de 27.80m², une cuisine ouverte donnant sur une terrasse de 14m², une chambre avec placard de 12.60m², une salle de bain avec WC. Chauffage et eau chaude individuels gaz. En extérieur, un emplacement de stationnement n°261 et au 1er étage, un cellier n°7. Entretien parties communes, entretien ascenseur et espaces verts communs, compris dans les provisions sur charges mensuelles et donnant lieu à une régularisation annuelle. Les honoraires de location TTC (à la charge du locataire) incluent le montant de rédaction des états des lieux facturé pour 167 euros TTC, après réalisation lors de l'entrée dans les lieux. Disponible le 08/01/2026. Pour plus de détails sur ce logement, vous pouvez consulter la fiche descriptive de ce bien, sur votre site internet AFEDIM Les informations sur les risques auxquels ce bien est exposé sont disponibles sur le site Géorisques :
Retour
Autres photos
Plan
Favoris

Contacter l'agence

CM-CIC GESTION IMMOBILIERE
2 Rond Point des Antons CS70304
44703 ORVAULT

Toutes les annonces immobilières de CM-CIC GESTION IMMOBILIERE
08.09.10.28.80 ou 08.10.00.69.36


Recevoir des annonces similaires

Location à proximité de Sallanches