recherche immobilières sur mobile

Location Appartement Membrolle-sur-choisille 3 pièces 59 m2 Indre et loire (37390) - 709 € / mois

location appartement 3 pièces 59 m² 2 chambres région Indre et loire

709 €/mois


Location Appartement 3 pièces MEMBROLLE-SUR-CHOISILLE 37390
Annonce Location 3 pièces Appartement Membrolle-sur-choisille 37

Description

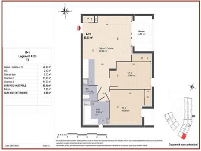
MEMBROLLE SUR CHOISILLE, dans la résidence LA BELLE EPOQUE. Nous vous proposons un appartement T3 de 59.30m² avec un balcon de 5.80m², situé au premier étage du bâtiment, avec ascenseur. Il comprend un séjour/cuisine de 28.80m², deux chambres, une salle de bains et un WC. Vous disposerez d'un stationnement au sous-sol portant le n 69. Chauffage et eau chaude individuels au gaz. Entretien parties communes, entretien ascenseur et espaces verts communs, compris dans les provisions sur charges mensuelles et donnant lieu à une régularisation annuelle. Les honoraires de location 657 E TTC (à la charge du locataire) incluent le montant de rédaction des états des lieux facturé pour 179 euros TTC, après réalisation lors de l'entrée dans les lieux. Disponible le 04/05/2026 Pour plus de détails sur ce logement, vous pouvez consulter la fiche descriptive de ce bien, sur votre site internet AFEDIM. Les informations sur les risques auxquels ce bien est exposé sont disponibles sur le site Géorisques :
Retour
Autres photos
Plan
Favoris

Contacter l'agence

CM-CIC GESTION IMMOBILIERE
2 Rond Point des Antons CS70304
44703 ORVAULT

Toutes les annonces immobilières de CM-CIC GESTION IMMOBILIERE
08.09.10.28.80 ou 08.10.00.69.36


Recevoir des annonces similaires

Location à proximité de Membrolle-sur-choisille