recherche immobilières sur mobile

Location Appartement Amiens 1 pièce 27 m2 Somme (80000) - 390 € / mois

location appartement 27 m² région Somme

390 €/mois


Location Appartement AMIENS 80000
Annonce Location Appartement Amiens 80
Louer Appartement 27 m2 Amiens

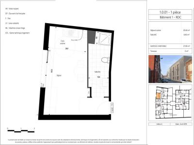
Description

A AMIENS, nous vous proposons dans la résidence neuve COEURVILLE, un appartement T1 n°1001 de 27.54m². Situé au RDC du bâtiment 1, il comprend un séjour de 20.40m² avec cuisine ouverte, une salle d'eau avec WC. Au sous-sol, un emplacement de stationnement n°4. Chauffage et eau chaude individuels au gaz. Entretien parties communes, ascenseur et espaces verts communs, compris dans les provisions sur charges mensuelles et donnant lieu à une régularisation annuelle. Les honoraires de location TTC (à la charge du locataire) incluent le montant de rédaction des états des lieux facturé pour 82 euros TTC, après réalisation lors de l'entrée dans les lieux. Disponible des maintenant. Pour plus de détails sur ce logement, vous pouvez consulter la fiche descriptive de ce bien, sur votre site internet AFEDIM. Les informations sur les risques auxquels ce bien est exposé sont disponibles sur le site Géorisques :
Retour
Autres photos
Plan
Favoris

Contacter l'agence

CM-CIC GESTION IMMOBILIERE
2 Rond Point des Antons CS70304
44703 ORVAULT

Toutes les annonces immobilières de CM-CIC GESTION IMMOBILIERE
08.09.10.28.80 ou 08.10.00.69.36


Recevoir des annonces similaires

Location à proximité de Amiens