recherche immobilières sur mobile

Appartement à vendre Saint-denis Reunion (97400) - 399000 €

vente appartement région Reunion

399 000 €


Vente Appartement SAINT-DENIS 97400
Annonce Vente Appartement Saint-denis 974
Acheter Appartement Saint-denis
Acheter Appartement Saint-denis Reunion

Description

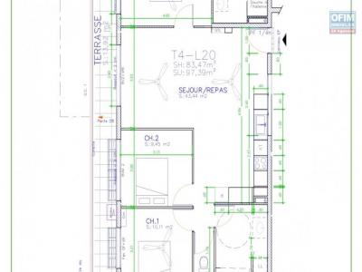
A VENDRE APPARTEMENT F4 DE 104.48 M2 AU CENTRE VILLE DE SAINT DENIS - OFIM vous propose à la VENTE cet appartement de type F4 de 104.48 m2 au 5eme Étages immeuble de 5 étages avec PARKING SOUS SOLCet appartement comprend: 3 chambres. une cuisine ouverte, une pièce principale , salle de bain et VARANGUE 13.92 M2 PRIX DE VENTE 399.000EPour toute visite et informationscontactez Mr Zakirhoussen ISSOUFALY+262.692761304 - Mail: Numéro de mandat: 2457 Honoraires à la charge du vendeur
Retour
Autres photos
Plan
Favoris

Contacter l'agence

votre agent immobilier OFIM (st denis 97400)
OFIM
juliette dodu
97400 st denis
Nous parlons :

Toutes les annonces immobilières de OFIM
02.62.21.46.46


Recevoir des annonces similaires

Vente à proximité de Saint-denis