recherche immobilières sur mobile

Location Appartement Villefranche-sur-saone 2 pièces 43 m2 Rhone (69400) - 646 € / mois

location appartement 2 pièces 43 m² région Rhone

646 €/mois


Location Appartement 2 pièces VILLEFRANCHE-SUR-SAONE 69400
Annonce Location 2 pièces Appartement Villefranche-sur-saone 69

Description

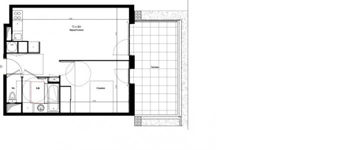
A001 LE ROMEO- PROFITEZ D'UNE JOLIE TERRASSE DONNANT INTERIEUR DE RESIDENCE RECENTE BBC DE STANDING. BEAU T2 composé d'un grand séjour de 25m² avec cuisine US meublée et équipée (plaques vitro, four, hotte, meubles haut et bas). Une belle chambre en sol parquet avec placard mural. Salle de bain aménagée. Rangements. Visiophone .Garage fermé en sous-sol sécurisé. PROCHE DU CENTRE VILLE ET DE SES COMMERCES. Consommation d'énergie totale entre 580EUR - 830EUR euros par an (prix moyens des énergies indexés au 2021.2022.2023). Les informations sur les risques auxquels ce bien est exposé sont disponibles sur le site Géorisques : www. georisques. gouv. fr
Retour
Autres photos
Plan
Favoris

Contacter l'agence

CONFIANCE IMMOBILIER MONPLAISIR LOCATION
108, avenue des frères Lumière
69008 LYON

Toutes les annonces immobilières de CONFIANCE IMMOBILIER MONPLAISIR LOCATION
04.72.78.89.87


Recevoir des annonces similaires

Location à proximité de Villefranche-sur-saone