recherche immobilières sur mobile

Location Appartement Villefranche-sur-saone 2 pièces 46 m2 Rhone (69400) - 691 € / mois

location appartement 2 pièces 46 m² région Rhone

691 €/mois


Location Appartement 2 pièces VILLEFRANCHE-SUR-SAONE 69400
Annonce Location 2 pièces Appartement Villefranche-sur-saone 69

Description

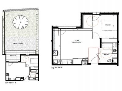
B002 VILLA SIENNA : COUP DE COEUR ASSURE POUR CE SUPERBE T2 DANS RESIDENCE RECENTE DE STANDING A FAIBLE CONSOMMATION ENERGETIQUE. JARDIN DE 86M² ET TERRASSE DE 14M² AU CALME. Il se compose d'une vaste pièce de vie de près de 28m² avec cuisine US aménagée (plaques vitro, four, hotte, meubles hauts et bas). Une grande chambre de 14m² en sol parquet avec placard mural aménagé. Salle de bain avec meuble sous vasque et sèche-serviettes. Garage fermé en sous-sol sécurisé. CHAUFFAGE IND AU GAZ. VIDEOPHONE. PROXIMITE GARE SNCF ET CENTRE VILLE. Consommation d'énergie totale entre 321 et 435 euros par an (prix moyens des énergies indexés au 01.01.2021). Les informations sur les risques auxquels ce bien est exposé sont disponibles sur le site Géorisques : www. georisques. gouv. fr
Retour
Autres photos
Plan
Favoris

Contacter l'agence

CONFIANCE IMMOBILIER MONPLAISIR LOCATION
108, avenue des frères Lumière
69008 LYON

Toutes les annonces immobilières de CONFIANCE IMMOBILIER MONPLAISIR LOCATION
04.72.78.89.87


Recevoir des annonces similaires

Location à proximité de Villefranche-sur-saone