recherche immobilières sur mobile

Location Appartement Agde 2 pièces 38 m2 Herault (34300) - 571 € / mois

location appartement 2 pièces 38 m² région Herault

571 €/mois


Location Appartement 2 pièces AGDE 34300
Annonce Location 2 pièces Appartement Agde 34

Description

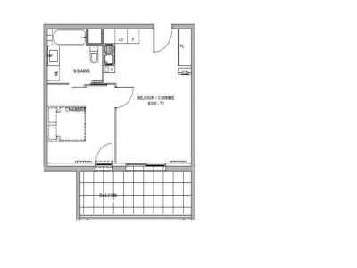
B206 LES TERRASSES DE SOLENE - A SAISIR - SUP T2, AU CALME, DONNANT ENTIEREMENT SUR L'INTERIEUR D'UNE RESIDENCE RECENTE BBC DE STANDING A PROXIMITE DES COMMERCES - Grand séjour et cuisine US équipée et aménagée (meubles hauts et bas + plaques, four et hotte) de 21.5m2 ouvrant sur une belle terrasse de 10m2, une belle chambre de 11m2 en sol parquet, SDB aménagée, placard de rangement, place de parking privative. Consommation d'énergie totale 295 euros par an (prix moyens des énergies indexés au 15.08.2015). Les informations sur les risques auxquels ce bien est exposé sont disponibles sur le site Géorisques : www. georisques. gouv. fr
Retour
Autres photos
Plan
Favoris

Contacter l'agence

CONFIANCE IMMOBILIER MONPLAISIR LOCATION
108, avenue des frères Lumière
69008 LYON

Toutes les annonces immobilières de CONFIANCE IMMOBILIER MONPLAISIR LOCATION
04.72.78.89.87


Recevoir des annonces similaires

Location à proximité de Agde