Maison à vendre Harnes 90 m2 Pas de calais (62440) - 259000 €
vente maison 90 m² 3 chambres région Pas de calais
259 000 €
Description
Maison neuve à construire
Nous vous proposons ce joli plain-pied de 3 chambres sur un très beau terrain constructible sur la commune de Harnes.
Ce terrain à Harnes proposé par notre partenaire lotisseur est situé à proximité des commerces, médecins et écoles.
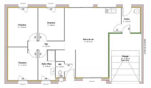
Vous disposerez de 90 m² habitables avec en partie jour une grande pièce de vie lumineuse avec baie vitrée, d'une cuisine ouverte ainsi qu'un cellier.
En partie nuit : 3 belles chambres, une salle de bain et un WC séparé.
Enfin, un garage complète ce bien.
Cette maison est une proposition imaginée par Maisons Home Ready, votre constructeur de maisons à Auchy-les-Mines.
Possibilité de réaliser votre maison personnalisée sur les secteurs de votre choix afin de s'adapter au mieux à votre budget.
MENTIONS LEGALES : Le modèle est totalement adaptable à vos envies et besoins et personnalisable grâce à de nombreuses options de finition. Nous consulter pour plus d'informations. Le prix affiché comprend le coût du terrain et de la construction (frais de notaire et taxes inclus). Les annonces de terrains constructibles sont sélectionnées auprès de nos partenaires fonciers selon disponibilités et autorisation de publicité en vue de construire une maison neuve avec un Contrat de Construction de Maison Individuelle dans le cadre de la loi du 19/12/1990. Ces derniers sont soit des professionnels dûment habilités à la transaction immobilière, soit des particuliers. Les terrains sélectionnés sont disponibles à la date de la première parution de l'annonce. En aucun cas Maisons Home Ready ou ses collaborateurs ne sont propriétaires des terrains, ne jouent un rôle d'intermédiation ou de négociation sur la transaction et ne participent à la vente. Les prix des terrains sont indiqués par nos partenaires fonciers.
Soumis au DPE
Conforme à la réglementation RE2020
Annonce Pro
Surface90 m2
Chambres3
SDB1
Référence19015441 - Pavillon_Harnes
Publiée le18/03/2026
Modifiée le31/03/2026
Retour
Autres photos
Plan
Favoris
Contacter l'agence
HOMEREADY 66 Route Nationale 62138 AUCHY-LES-MINES
X FermerUtilisation des cookies En poursuivant votre navigation vous acceptez l'utilisation des cookies ou technologies similaires pour disposer de services et d'offres adaptés à vos centres d'intérêts Pour plus d'informations, gérer ou modifier les paramètres, cliquez ici