recherche immobilières sur mobile

Location Appartement Annecy 3 pièces 66 m2 Haute savoie (74000) - 864 € / mois

location appartement 3 pièces 66 m² 2 chambres région Haute savoie

864 €/mois


Location Appartement 3 pièces ANNECY 74000
Annonce Location 3 pièces Appartement Annecy 74

Description

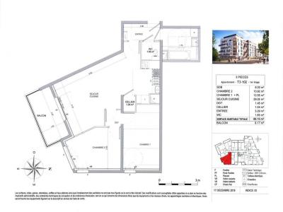
A Annecy, dans la résidence L'ENECY, que nous vous proposons un appartement T3, d'une superficie de 66,15 m² situé au 1er étage avec ascenseur. Il se compose d'une entrée, d'un cellier, d'un dégagement, d'un séjour-cuisine aménagée et équipée de 29,05 m² donnant sur un balcon de 8,17 m² orienté Sud-Est, d'une salle de bain avec WC et de deux chambres de 12,55 m² et de 10,92 m². En sus, 2 stationnements ouverts Chauffage et eau chaude individuel à gaz. Eau froide individuelle. Ascenseur, espaces verts communs et entretien parties communes, compris dans les provisions sur charges mensuelles et donnant lieu à une régularisation annuelle. Les honoraires de location (à la charge du locataire) incluent le montant de rédaction des états des lieux facturé pour 198,00 euros TTC, après réalisation lors de l'entrée dans les lieux. Disponible le 05/04/2026. Pour plus de détails sur ce logement, vous pouvez consulter la fiche descriptive de ce bien, sur notre site internet AFEDIM. Les informations sur les risques auxquels ce bien est exposé sont disponibles sur le site Géorisques :
Retour
Autres photos
Plan
Favoris

Contacter l'agence

AFEDIM Gestion
2 Rond Point des Antons CS70304
44703 ORVAULT

Toutes les annonces immobilières de AFEDIM Gestion
08.09.10.28.80 ou 08.10.00.69.36


Recevoir des annonces similaires

Location à proximité de Annecy