recherche immobilières sur mobile

Location Appartement Metz 1 pièce 19 m2 Moselle (57070) - 383 € / mois

location appartement 19 m² région Moselle

383 €/mois


Location Appartement METZ 57070
Annonce Location Appartement Metz 57

Description

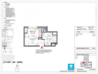
A METZ, dans la résidence L'OLYMPE, nous vous proposons un logement T1 N°01A303 de 19.30 m² au 3ème étage avec ascenseur. Il se compose, d'une pièce de vie de 13.10 m² avec cuisine ouverte sur séjour, une salle d'eau et WC de 6.2 m². Eau chaude et chauffage (individuel). Entretien parties communes, entretien ascenseur et espaces verts communs, compris dans les provisions sur charges mensuelles et donnant lieu à une régularisation annuelle. Les honoraires de location 213euros TTC (à la charge du locataire) incluent le montant de rédaction des états des lieux facturé pour 58euros TTC, après réalisation lors de l'entrée dans les lieux. Disponible le 13/06/2026. Pour plus de détails sur ce logement, vous pouvez consulter la fiche descriptive de ce bien, sur votre site internet AFEDIM. Les informations sur les risques auxquels ce bien est exposé sont disponibles sur le site Géorisques :
Retour
Autres photos
Plan
Favoris

Contacter l'agence

AFEDIM Gestion
2 Rond Point des Antons CS70304
44703 ORVAULT

Toutes les annonces immobilières de AFEDIM Gestion
08.09.10.28.80 ou 08.10.00.69.36


Recevoir des annonces similaires

Location à proximité de Metz