recherche immobilières sur mobile

Location Appartement Noyal-sur-vilaine 3 pièces 68 m2 Ille et vilaine (35530) - 694 € / mois

location appartement 3 pièces 68 m² 2 chambres région Ille et vilaine

694 €/mois


Location Appartement 3 pièces NOYAL-SUR-VILAINE 35530
Annonce Location 3 pièces Appartement Noyal-sur-vilaine 35

Description

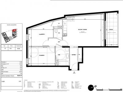
NOYAL-SUR-VILAINE dans la résidence EMPREINTE, nous vous proposons un appartement T3 (n°B102), d'une superficie de 68.42 m² situé au 1er étage. Il se compose d'une entrée avec placard, d'un dégagement, d'un séjour-cuisine de 28.72 m² donnant sur une loggia de 9.05 m² exposée sud, d'une chambre de 11.83 m², d'une deuxième chambre de 12.34 m² avec placard, et d'une salle de bain avec WC séparé. Emplacements parking n°PS10 et PS09. Chauffage et eau chaude individuels gaz. Eau froide, ascenseur, espaces verts communs et entretien parties communes, compris dans les provisions sur charges mensuelles et donnant lieu à une régularisation annuelle. Les honoraires de location sont de 552 E TTC (à la charge du locataire) et le montant de rédaction des états des lieux facturé 207 E TTC, après réalisation lors de l'entrée dans les lieux. Plus de détails sur ce logement sur notre site internet AFEDIM. Les informations sur les risques auxquels ce bien est exposé sont disponibles sur le site Géorisques :
Retour
Autres photos
Plan
Favoris

Contacter l'agence

AFEDIM Gestion
2 Rond Point des Antons CS70304
44703 ORVAULT

Toutes les annonces immobilières de AFEDIM Gestion
08.09.10.28.80 ou 08.10.00.69.36


Recevoir des annonces similaires

Location à proximité de Noyal-sur-vilaine