recherche immobilières sur mobile

Location Appartement Saint-fons 3 pièces 57 m2 Rhone (69190) - 834 € / mois

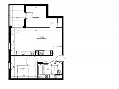
location appartement 3 pièces 57 m² 2 chambres région Rhone

834 €/mois


Location Appartement 3 pièces SAINT-FONS 69190

Description

B303 - LE MARIUS - ST FONS. INTERIEUR DE RESIDENCE RECENTE (2021) BBC , T3 avec pièce de vie comprenant une cuisine aménagée (plaques vitro, four, hotte, meubles hauts et bas) accès balcon, deux chambres dont une avec placard aménagé, salle de bain avec baignoire et vasque, WC séparés. Garage individuel fermé en sous-sol sécurisé. CHAUFFAGE IND AU GAZ. VIDEOPHONE. CONSOMMATION TOTALE D'ENERGIE ENTRE 468EUR et 633EUR/AN (prix moyen des énergies indéxées au 01/01/2021) Les informations sur les risques auxquels ce bien est exposé sont disponibles sur le site Géorisques : www. georisques. gouv. fr
Retour
Autres photos
Plan
Favoris

Contacter l'agence

CONFIANCE IMMOBILIER MONPLAISIR LOCATION
108, avenue des frères Lumière
69008 LYON

Toutes les annonces immobilières de CONFIANCE IMMOBILIER MONPLAISIR LOCATION
04.72.78.89.87


Recevoir des annonces similaires

Location à proximité de Saint-fons