recherche immobilières sur mobile

Location Appartement Chenove 4 pièces 72 m2 Cote d'or (21300) - 551 € / mois

location appartement 4 pièces 72 m² 3 chambres région Cote d'or

551 €/mois


Location Appartement 4 pièces CHENOVE 21300
Annonce Location 4 pièces Appartement Chenove 21
Louer Appartement 72 m2 Chenove

Description

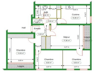
Appartement de type 4 au 2 rue des Tamaris à Chenôve Quartier Le Mail, secteur Tamaris. Au sein d'une résidence construite en 1964 avec accès sécurisé par badge. Situé au 4ème étage sans ascenseur, cet appartement loué non meublé de 72 m² se compose d'un agréable séjour donnant sur une loggia exposée Sud-Est, et d'une cuisine fermée de 10 m². L'espace nuit comprend 3 chambres, dont une équipée de placards de rangement et donnant sur une seconde loggia, une salle de bain et des WC séparés. Le logement bénéficie du chauffage collectif au gaz, d'un contrat multi-services ainsi qu'un service d'astreinte 24 heures sur 24, 7 jours sur 7 inclus dans les charges. Son emplacement permet de profiter de toutes les commodités, avec un accès rapide à la ligne de tram T2 ainsi qu'au réseau de bus Divia. Les emplacements de parking sont libres et gratuits autour de la résidence. Pour toute information complémentaire, merci de contacter Madame Loane SOLANES, par mail ou par téléphone. Pas de frais d'agence.
Retour
Autres photos
Plan
Favoris

Contacter l'agence

votre agent immobilier ORVITIS (DIJON 21000)
ORVITIS
17 BOULEVARD VOLTAIRE
21000 DIJON

Toutes les annonces immobilières de ORVITIS
06.88.94.50.72 ou 08.10.02.10.00
Voir le site de l'agent


Recevoir des annonces similaires

Location à proximité de Chenove