recherche immobilières sur mobile

Location Appartement Nantes 2 pièces 42 m2 Loire atlantique (44300) - 595 € / mois

location appartement 2 pièces 42 m² région Loire atlantique

595 €/mois


Location Appartement 2 pièces NANTES 44300
Annonce Location 2 pièces Appartement Nantes 44
Louer Appartement 42 m2 Nantes
Louer Appartement Nantes Loire atlantique
Louer Appartement Nantes 595 euros

Description

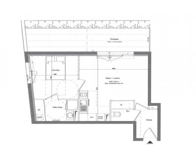
NANTES - QUARTIER LA BEAUJOIRE, dans une Résidence récente, à proximité des commerces et des transports un appartement Type 2 de 42.80m² comprenant : Une entrée, un séjour avec placard donnant sur une terrasse de 16m², une cuisine ouverte aménagée et équipée de plaques vitrocéramiques 2 feux et d'une hotte, une chambre avec une salle d'eau attenante, wc séparés. Parking Couvert CONDITIONS DE RESSOURCES : LOI PINEL Les informations sur les risques auxquels ce bien est exposé sont disponibles sur le site Géorisques : Ce bien est soumis à l'assurance Garantie Loyers Impayés.
Retour
Autres photos
Plan
Favoris

Contacter l'agence

votre agent immobilier CABINET THIERRY (NANTES 44000)
CABINET THIERRY
du Couedic
44000 NANTES
Nous parlons :

Toutes les annonces immobilières de CABINET THIERRY
02.40.47.94.43


Recevoir des annonces similaires

Location à proximité de Nantes