recherche immobilières sur mobile

Location Appartement Sete 2 pièces 42 m2 Herault (34200) - 621 € / mois

location appartement 2 pièces 42 m² région Herault

621 €/mois


Location Appartement 2 pièces SETE 34200
Annonce Location 2 pièces Appartement Sete 34
Louer Appartement 42 m2 Sete

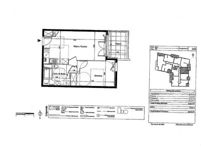
Description

C'est à SETE, dans la résidence AIGABELLA que nous vous proposons un appartement T2 n°306 d'une superficie de 42.82m² situé au 3ème étage. Il comprend un séjour avec coin cuisine aménagée et équipée (plaque et hotte) de 22.74m² donnant sur un balcon de 5.80m², une chambre de 12.22m² et une salle d'eau de 6.23m² avec WC et un dégagement. Ce logement dispose d'une place de stationnement n°28. Eau chaude et chauffage (individuel). Entretien parties communes, entretien ascenseur et espaces verts communs, compris dans les provisions sur charges mensuelles et donnant lieu à une régularisation annuelle. Les honoraires de location 561euros TTC (à la charge du locataire) incluent le montant de rédaction des états des lieux facturé pour 129euros TTC, après réalisation lors de l'entrée dans les lieux. Disponible le 06/04/2026. Pour plus de détails sur ce logement, vous pouvez consulter la fiche descriptive de ce bien, sur votre site internet AFEDIM. Les informations sur les risques auxquels ce bien est exposé sont disponibles sur le site Géorisques :
Retour
Autres photos
Plan
Favoris

Contacter l'agence

CM - CIC GESTION IMMOBILIERE
2 rond point des AntonsBP70904
44703 ORVAULT

Toutes les annonces immobilières de CM - CIC GESTION IMMOBILIERE
08.09.10.28.80


Recevoir des annonces similaires

Location à proximité de Sete