recherche immobilières sur mobile

Location Appartement Valenciennes 3 pièces 63 m2 Nord (59300) - 697 € / mois

location appartement 3 pièces 63 m² 2 chambres région Nord

697 €/mois


Location Appartement 3 pièces VALENCIENNES 59300
Annonce Location 3 pièces Appartement Valenciennes 59
Louer Appartement 63 m2 Valenciennes

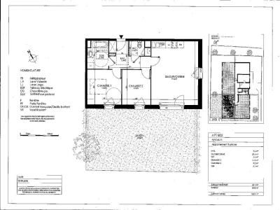
Description

A Valenciennes, résidence "Le CARRE DES SENS". Nous vous proposons un appartement T3 d'une superficie de 63,10m² situé au 1er étage, comprenant : Une entrée avec placard, un séjour d'environ 27m² avec coin cuisine aménagé/équipé (plaque à induction, hotte, four) deux chambres, une salle de bain avec WC séparé. Un jardin de 63m², un parking n°11 Eau chaude et chauffage individuel gaz. Entretien parties communes, entretien ascenseur compris dans les provisions sur charges mensuelles et donnant lieu à une régularisation annuelle. Les honoraires de location TTC (à la charge du locataire) incluent le montant de rédaction des états des lieux facturé pour 189 euros TTC, après réalisation lors de l'entrée dans les lieux. Vous pouvez consulter la fiche descriptive de ce bien, sur votre site internet AFEDIM. Les informations sur les risques auxquels ce bien est exposé sont disponibles sur le site Géorisques :
Retour
Autres photos
Plan
Favoris

Contacter l'agence

AFEDIM Gestion
2 Rond Point des Antons CS70304
44703 ORVAULT

Toutes les annonces immobilières de AFEDIM Gestion
08.09.10.28.80 ou 08.10.00.69.36


Recevoir des annonces similaires

Location à proximité de Valenciennes