location appartement 2 pièces 38 m² région Cote d'or
562 €/mois
Description
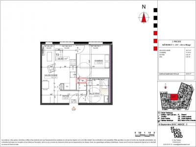
DIJON - Dans la résidence INTENCITE , nous vous proposons appartement T2 n° A207 de 38.8m² situé au 2ème étage avec ascenseur. Il comprend une entrée, un séjour avec coin cuisine, une chambre et une salle d'eau avec WC. Chauffage et eau chaude collectifs par le réseau urbain. Entretien parties communes, entretien ascenseur et espaces verts communs, compris dans les provisions sur charges mensuelles et donnant lieu à une régularisation annuelle. Les honoraires de location TTC (à la charge du locataire) incluent le montant de rédaction des états des lieux facturé pour 117 euros TTC, après réalisation lors de l'entrée dans les lieux. Disponible le 10/04/2026. Pour plus de détails sur ce logement, vous pouvez consulter la fiche descriptive de ce bien, sur votre site internet AFEDIM
Les informations sur les risques auxquels ce bien est exposé sont disponibles sur le site Géorisques :
Annonce Pro
Surface38 m2
Pièces2
Chambre1
Séjour18 m2
DPEC
GESC
Référence19032407 - 0051366
Publiée le26/03/2026
BarèmeVoir le barème des honoraires
Retour
Autres photos
Plan
Favoris
Contacter l'agence
AFEDIM Gestion 2 Rond Point des Antons CS70304 44703 ORVAULT
X FermerUtilisation des cookies En poursuivant votre navigation vous acceptez l'utilisation des cookies ou technologies similaires pour disposer de services et d'offres adaptés à vos centres d'intérêts Pour plus d'informations, gérer ou modifier les paramètres, cliquez ici