recherche immobilières sur mobile

Appartement à vendre Orly 1 pièce 31 m2 Val de Marne (94310) - 155000 €

vente appartement 31 m² région Val de marne

155 000 €


Vente Appartement ORLY 94310
Annonce Vente Appartement Orly 94
Acheter Appartement 31 m2 Orly
Acheter Appartement Orly Val de Marne
Acheter Appartement Orly 155000 euros

Description

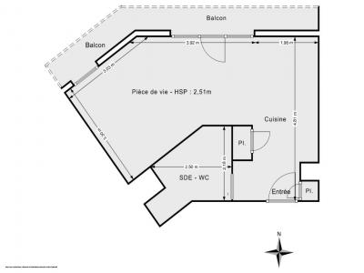
Liberkeys vous propose en exclusivité ce grand studio de 31 m², situé au 4ème et dernier étage d'une résidence récente de 2015, dans le quartier recherché du Fer à Cheval, en centre-ville d'Orly, à seulement 200 mètres du tramway T9 - arrêt Gaston Viens. Proposé au prix de 155 000 E FAI, ce bien conviendra parfaitement pour un premier achat, un pied-à-terre, ou un investissement locatif recherchant un appartement fonctionnel, bien placé et sans travaux. Un studio spacieux et bien agencé L'un des vrais atouts de cet appartement est son excellent agencement, particulièrement appréciable pour cette surface. Il se compose de : une entrée avec rangement un coin cuisine équipé un espace salon un espace nuit une salle d'eau avec WC Sa configuration permet également d'envisager une transformation en T2 en créant une cloison, ce qui en fait un bien à la fois confortable aujourd'hui et évolutif pour demain. Les atouts qui font la différence 4ème et dernier étage Aucun voisin au-dessus Terrasse orientée nord-ouest Place de parking sécurisée en sous-sol Cuisine équipée Possibilité d'acquérir le bien avec un lit armoire Résidence récente de 2015 Aucun travaux à prévoir dans la copropriété Le fait d'être au dernier étage est un vrai plus au quotidien, apportant davantage de tranquillité et limitant les nuisances sonores liées au voisinage. Charges maîtrisées et bon confort énergétique Le chauffage et l'eau chaude sont assurés par géothermie, un système à la fois économique et plus écologique. Les charges de copropriété sont de 110 E par mois, incluant : le chauffage l'eau chaude l'eau froide Autres informations : Taxe foncière : 1 100 E / an DPE : C Un emplacement pratique et recherché Autre point fort majeur : l'emplacement. Situé dans le quartier Fer à Cheval, en centre-ville d'Orly, l'appartement bénéficie d'un environnement pratique, vivant et recherché, avec toutes les commodités acces
Retour
Autres photos
Plan
Favoris

Contacter l'agence

LIBERKEYS
128 rue de la Boétie
75008 PARIS

Toutes les annonces immobilières de LIBERKEYS
06.02.08.94.83 ou 01.82.88.09.93


Recevoir des annonces similaires

Vente à proximité de Orly