recherche immobilières sur mobile

Location Appartement Nancy 2 pièces 38 m2 Meurthe et moselle (54000) - 614 € / mois

location appartement 2 pièces 38 m² région Meurthe et moselle

614 €/mois


Location Appartement 2 pièces NANCY 54000
Annonce Location 2 pièces Appartement Nancy 54
Louer Appartement 38 m2 Nancy
Louer Appartement Nancy Meurthe et moselle
Louer Appartement Nancy 614 euros

Description

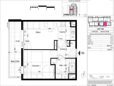
A NANCY - Se situe à proximité du CHU, des commerces, nous vous proposons dans la résidence LES RIVAGES un appartement récent T2 n°135 de 38.91m². Situé au 4ème étage du bâtiment 1, il comprend une entrée, un séjour de 12.85m², une cuisine équipée/aménagée ouverte donnant sur un balcon de 8.94m², une chambre de 12.43m², une salle de bain et un WC séparé. Chauffage et eau chaude collectifs au gaz. Au sous-sol, un emplacement de stationnement n°222. Entretien parties communes, ascenseur et espaces verts communs, compris dans les provisions sur charges mensuelles et donnant lieu à une régularisation annuelle. Les honoraires de location sont facturés directement au locataire par le partenaire pour 314E TTC. Quant aux honoraires de rédaction des états des lieux, ils sont facturés par AFEDIM Gestion pour 117E TTC, après réalisation, lors de l'entrée dans les lieux. Les informations sur les risques auxquels ce bien est exposé sont disponibles sur le site Géorisques :
Retour
Autres photos
Plan
Favoris

Contacter l'agence

AFEDIM Gestion
2 Rond Point des Antons CS70304
44703 ORVAULT

Toutes les annonces immobilières de AFEDIM Gestion
08.09.10.28.80 ou 08.10.00.69.36


Recevoir des annonces similaires

Location à proximité de Nancy