recherche immobilières sur mobile

Location Appartement Villefranche-sur-saone 3 pièces 60 m2 Rhone (69400) - 840 € / mois

location appartement 3 pièces 60 m² région Rhone

840 €/mois


Location Appartement 3 pièces VILLEFRANCHE-SUR-SAONE 69400
Annonce Location 3 pièces Appartement Villefranche-sur-saone 69

Description

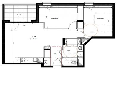
B106 VILLA SIENNA : LOI PINEL - PROCHE DE LA GARE SNCF ET DU CENTRE VILLE T3 DONNANT INTERIEUR D'UNE RESIDENCE NEUVE DE STANDING A FAIBLE CONSOMMATION ENERGETIQUE comprenant une entrée avec placard mural, une pièce de vie de près de 26m² avec cuisine US équipée (plaques vitro, four, hotte, meubles hauts et bas) ouvrant sur une belle terrasse exposé ouest. 2 grandes chambres en sol parquet avec placard mural aménagé. Salle de bain avec meuble sous vasque et sèche-serviettes. Garage fermé en sous-sol sécurisé. CHAUFFAGE IND AU GAZ. VIDEOPHONE. Consommation d'énergie totale entre 388 et 525 euros par an (prix moyens des énergies indexés au 1er janvier 2021). Les informations sur les risques auxquels ce bien est exposé sont disponibles sur le site Géorisques : www. georisques. gouv. fr
Retour
Autres photos
Plan
Favoris

Contacter l'agence

CONFIANCE IMMOBILIER MONPLAISIR LOCATION
108, avenue des frères Lumière
69008 LYON

Toutes les annonces immobilières de CONFIANCE IMMOBILIER MONPLAISIR LOCATION
04.72.78.89.87


Recevoir des annonces similaires

Location à proximité de Villefranche-sur-saone