recherche immobilières sur mobile

Location Appartement Nantes 2 pièces 50 m2 Loire atlantique (44300) - 608 € / mois

location appartement 2 pièces 50 m² région Loire atlantique

608 €/mois


Location Appartement 2 pièces NANTES 44300
Annonce Location 2 pièces Appartement Nantes 44
Louer Appartement 50 m2 Nantes
Louer Appartement Nantes Loire atlantique
Louer Appartement Nantes 608 euros

Description

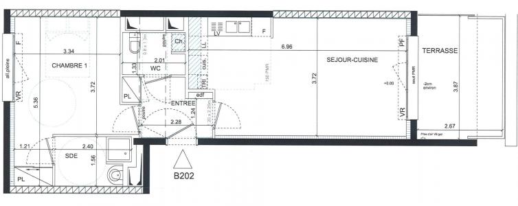
NANTES - QUARTIER BOTTIERE. A proximité de l'arrêt Souillarderie (ligne 1) du tramway, dans résidence récente BBC, type 2 comprenant une entrée avec placard, un séjour de 24m² donnant sur une terrasse de 10m², cuisine ouverte aménagée et équipée (plaques, four, hotte), une chambre avec placard, une salle d'eau attenante, wc. Le logement bénéficie d'une place de parking couvert. Logement soumis à la Garantie des Loyers Impayés (GLI). Les informations sur les risques auxquels ce bien est exposé sont disponibles sur le site Géorisques: .
Retour
Autres photos
Plan
Favoris

Contacter l'agence

votre agent immobilier CABINET THIERRY (NANTES 44000)
CABINET THIERRY
du Couedic
44000 NANTES
Nous parlons :

Toutes les annonces immobilières de CABINET THIERRY
02.40.47.94.43


Recevoir des annonces similaires

Location à proximité de Nantes