recherche immobilières sur mobile

Location Appartement Elne 3 pièces 62 m2 Pyrenees orientales (66200) - 660 € / mois

location appartement 3 pièces 62 m² 2 chambres région Pyrenees orientales

660 €/mois


Location Appartement 3 pièces ELNE 66200
Annonce Location 3 pièces Appartement Elne 66
Louer Appartement 62 m2 Elne
Louer Appartement Elne Pyrenees orientales
Louer Appartement Elne 660 euros

Description

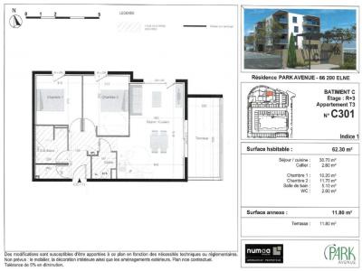
Les photos illustrant cette annonce proviennent d'un autre appartement de la résidence. Elles ne représentent pas le logement proposé, mais permettent d'avoir un aperçu des prestations . DomUP Location vous propose, sur la commune d'Elne, au sein d'une résidence neuve et sécurisée, un appartement au 2éme étage de 62,30 m² avec terrasse et deux places de parking. Ce logement se compose : d'un hall d'entrée ouvrant sur une pièce à vivre lumineuse de 30,70 m² avec cuisine aménagée et semi-équipée, d'un cellier de 2,60 m², d'une agréable terrasse de 11,80 m² idéale pour profiter des beaux jours, côté nuit : deux chambres de 10,20 m² et 11,70 m², une salle de bain, un WC indépendant. La résidence bénéficie d'un emplacement proche des commodités. Loyer : 660 E charges comprises (ordures ménagères, charges collectives, etc.). Le loyer inclut deux places de parking (non couvertes). Loyer payable à terme échu - sans frais d'agence. Des références sont exigées. Un dossier complet devra être soumis avant toute visite. A compter du 1er Décembre, le n° de téléphone DOMUP change, merci de nous joindre au 05 61 10 50 10 Les informations sur les risques auxquels ce bien est exposé sont disponibles sur le site Géorisques : www. georisques. gouv. fr
Retour
Autres photos
Plan
Favoris

Contacter l'agence

DOMUP
154 bis allée de Barcelone
31000 Toulouse

Toutes les annonces immobilières de DOMUP
05.61.10.50.10 ou 09.70.81.89.70


Recevoir des annonces similaires

Location à proximité de Elne