recherche immobilières sur mobile

Location Appartement Angers 3 pièces 64 m2 Maine et loire (49000) - 935 € / mois

location appartement 3 pièces 64 m² 2 chambres région Maine et loire

935 €/mois


Location Appartement 3 pièces ANGERS 49000
Annonce Location 3 pièces Appartement Angers 49
Louer Appartement 64 m2 Angers

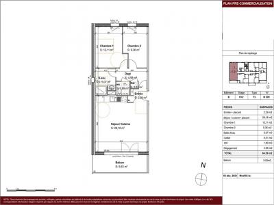
Description

A ANGERS, dans la résidence neuve ILOT ALTO, nous vous proposons ce T3 de 64.39m² situé au deuxième étage du bâtiment B. Il se compose d'une entrée avec placard, un séjour/cuisine donnant sur un balcon de 9.83m², un dégagement desservant un cellier, deux chambres, une salle d'eau et un WC. Au sous-sol un emplacement de stationnement. Chauffage et eau chaude collectifs urbain. Eau chaude, eau froide, chauffage, entretien parties communes et ascenseur, compris dans les provisions sur charges mensuelles et donnant lieu à une régularisation annuelle. Les honoraires de location TTC (à la charge du locataire) incluent le montant de rédaction des états des lieux facturé pour 193 euros TTC, après réalisation lors de l'entrée dans les lieux. Disponibilité prévisionnelle courant janvier 2026. Plus de détails sur notre site AFEDIM. Logement neuf en cours de construction - DPE à venir Les informations sur les risques auxquels ce bien est exposé sont disponibles sur le site Géorisques :
Retour
Autres photos
Plan
Favoris

Contacter l'agence

CM - CIC GESTION IMMOBILIERE
2 rond point des AntonsBP70904
44703 ORVAULT

Toutes les annonces immobilières de CM - CIC GESTION IMMOBILIERE
08.09.10.28.80


Recevoir des annonces similaires

Location à proximité de Angers