recherche immobilières sur mobile

Location Appartement Saint-fons 2 pièces 46 m2 Rhone (69190) - 594 € / mois

location appartement 2 pièces 46 m² région Rhone

594 €/mois


Location Appartement 2 pièces SAINT-FONS 69190
Annonce Location 2 pièces Appartement Saint-fons 69

Description

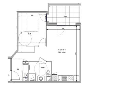
B101- L'ESQUISSE - ST FONS. SPACIEUX T2 DE 46m² INTERIEUR DE RESIDENCE RECENTE (2018) BBC ET SECURISEE. Agréable pièce de vie de 21m² avec cuisine US aménagée (plaques, four et hotte) ouvrant sur un balcon avec vue dégagée, une chambre avec placard aménagé, salle d'eau avec bac à douche, vasque et WC Place de parking privative en sous-sol sécurisé. CHAUFFAGE IND AU GAZ. PROXIMITE DU CENTRE DE SAINT FONS ET DES TRANSPORTS. CONSOMMATION TOTALE D'ENERGIE ENTRE 300EUR et 440EUR/AN (prix moyen des énergies indéxées au 01/01/2021) Les informations sur les risques auxquels ce bien est exposé sont disponibles sur le site Géorisques : www. georisques. gouv. fr
Retour
Autres photos
Plan
Favoris

Contacter l'agence

CONFIANCE IMMOBILIER MONPLAISIR LOCATION
108, avenue des frères Lumière
69008 LYON

Toutes les annonces immobilières de CONFIANCE IMMOBILIER MONPLAISIR LOCATION
04.72.78.89.87


Recevoir des annonces similaires

Location à proximité de Saint-fons