recherche immobilières sur mobile

Location Appartement Cucq 1 pièce 30 m2 Pas de calais (62780) - 480 € / mois

location appartement 30 m² région Pas de calais

480 €/mois


Location Appartement CUCQ 62780
Annonce Location Appartement Cucq 62

Description

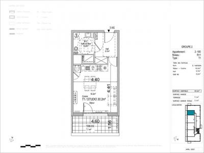
À CUCQ, nous avons le plaisir de vous présenter au sein de la résidence LE SAND un logement de type T1, offrant une superficie totale de 30,38m², situé 1er étage avec ascenseur. L'espace de vie principal se compose d'un séjour lumineux de 19,39m² ouvert sur une cuisine moderne équipée et aménagée de plaque, hotte et four. De plus, elle s'ouvre sur une terrasse de 6,83m², offrant un espace extérieur agréable pour profiter des beaux jours ou prendre un repas en plein air. La salle de bain, d'une superficie de 5,18m², est équipée d'une douche, d'un meuble vasque. Les toilettes sont intégrées à la salle d'eau. Le chauffage et l'eau chaude sont individuel. L'eau froide est comprise dans les charges mensuelles ainsi que les parties communes et les espaces verts de la résidence sont entretenus régulièrement, et les frais d'entretien sont inclus dans les provisions sur charges mensuelles. Une régularisation annuelle est effectuée pour ajuster les coûts en fonction de l'utilisation réelle des services. Les honoraires de location TTC, à la charge du locataire, incluent le montant de la rédaction des états des lieux, facturé à 306,00E, après la réalisation lors de l'entrée dans les lieux. Pour plus de détails sur ce logement, vous pouvez consulter la fiche descriptive de ce bien, sur notre site internet AFEDIM. Logement neuf en cours de construction - DPE à venir Les informations sur les risques auxquels ce bien est exposé sont disponibles sur le site Géorisques :
Retour
Autres photos
Plan
Favoris

Contacter l'agence

CM - CIC GESTION IMMOBILIERE
2 rond point des AntonsBP70904
44703 ORVAULT

Toutes les annonces immobilières de CM - CIC GESTION IMMOBILIERE
08.09.10.28.80


Recevoir des annonces similaires

Location à proximité de Cucq