recherche immobilières sur mobile

Location Appartement Saint-gilles-croix-de-vie 3 pièces 62 m2 Vendee (85800) - 767 € / mois

location appartement 3 pièces 62 m² 2 chambres région Vendee

767 €/mois


Location Appartement 3 pièces SAINT-GILLES-CROIX-DE-VIE 85800
Annonce Location 3 pièces Appartement Saint-gilles-croix-de-vie 85

Description

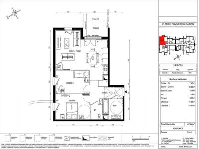
A ST GILLES CROIX DE VIE, dans la résidence CAP LITTORAL, nous vous proposons un logement T3 N°1003 de 62.66 m² sis au RDC. Il se compose, d'une entrée avec placard, une pièce de vie de 25.59 m² avec cuisine ouverte sur séjour et donnant sur une terrasse de 7.50 m² exposée sud-est, une chambre de 11.53 m² et une chambre de 10.43 m², une salle d'eau avec meuble vasque et WC séparés. Au sous sol un parking N°8011. Chauffage et eau chaude en individuel gaz. Entretien des parties communes et espaces verts communs, compris dans les provisions sur charges mensuelles et donnant lieu à une régularisation annuelle. Les honoraires de location TTC (à la charge du locataire) incluent le montant de rédaction des états des lieux facturé pour 187 euros TTC, après réalisation lors de l'entrée dans les lieux. Plus de détails sur notre site AFEDIM. Les informations sur les risques auxquels ce bien est exposé sont disponibles sur le site Géorisques :
Retour
Autres photos
Plan
Favoris

Contacter l'agence

AFEDIM Gestion
2 Rond Point des Antons CS70304
44703 ORVAULT

Toutes les annonces immobilières de AFEDIM Gestion
08.09.10.28.80 ou 08.10.00.69.36


Recevoir des annonces similaires

Location à proximité de Saint-gilles-croix-de-vie