recherche immobilières sur mobile

Appartement à vendre Paris-12eme-arrondissement 1 pièce 40 m2 Paris (75012) - 420000 €

vente appartement 40 m² région Paris

420 000 €


Vente Appartement PARIS-12EME-ARRONDISSEMENT 75012
Annonce Vente Appartement Paris-12eme-arrondissement 75
Acheter Appartement 40 m2 Paris-12eme-arrondissement
Acheter Appartement Paris-12eme-arrondissement Paris
Acheter Appartement Paris-12eme-arrondissement 420000 euros

Description

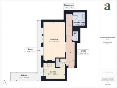
Bienvenue chez Abriculteurs, l'agence familiale qui s'engage à un service d'exception. Découvrez une présentation soignée de ce bien : des photos pro, un plan détaillé et une visite virtuelle immersive pour vous projeter. Faites confiance à notre expertise pour transformer vos projets immobiliers en réussites remarquables. Découvrez ce studio très lumineux de 40,72 m² au 7ème étage avec ascenseur d'un immeuble bien tenu et parfaitement situé sur l'avenue de Saint-Mandé, à 2 pas de la place Courteline et du métro Picpus (ligne 6), et à 5mn à pied de la Place de la Nation. L'appartement s'ouvre sur une vaste pièce de vie lumineuse de 18 m², disposant de grandes baies vitrées qui donnent accès à un long balcon filant de 11 m². Donnant exclusivement sur le jardin intérieur de l'immeuble, il est très au calme et offre une vue dégagée sans aucun vis-à-vis. La grande cuisine indépendante peut s'ouvrir sur le séjour, ce qui permet de reconfigurer l'appartement en un 2-pièces, ou un grand T1 bis. Le bien dispose également d'une salle d'eau ainsi que de WC séparés. Enfin, une cave complète ce bien, et une place de parking est également proposée en sus du prix. Les + du bien : - Emplacement très recherché - Immeuble semi-récent bien tenu - Étage élevé avec ascenseur - Calme & lumineux - Vue dégagée sans aucun vis-à-vis - Balcon filant de 11 m² donnant sur jardin - Cave incluse dans le prix - Place de parking disponible en sus du prix - Produit idéal pour un investissement locatif solide : rentabilité estimée à 4 % (loyer estimé à 1600E CC) À noter : - Taxe foncière : 700 E/an - Charges courantes annuelles : 2 544 E/an (chauffage & eau chaude collectifs inclus) - Coût annuel du chauffage inclus dans charges - Le bien est soumis au statut de copropriété - Nombre de lots à préciser - Appartement n° 316 - Cave n° 254 - Quote part : 103 / 10 036 èmes - Tout à l'égout - Pas de procédure en cours Consommation c
Retour
Autres photos
Plan
Favoris

Contacter l'agence

LES ABRICULTEURS
12 Rue des Halles
75001 PARIS

Toutes les annonces immobilières de LES ABRICULTEURS
06.70.74.49.35 ou 09.71.00.58.38


Recevoir des annonces similaires

Vente à proximité de Paris-12eme-arrondissement