recherche immobilières sur mobile

Location Appartement Nantes 2 pièces 37 m2 Loire atlantique (44300) - 569 € / mois

location appartement 2 pièces 37 m² région Loire atlantique

569 €/mois


Location Appartement 2 pièces NANTES 44300
Annonce Location 2 pièces Appartement Nantes 44
Louer Appartement 37 m2 Nantes
Louer Appartement Nantes Loire atlantique
Louer Appartement Nantes 569 euros

Description

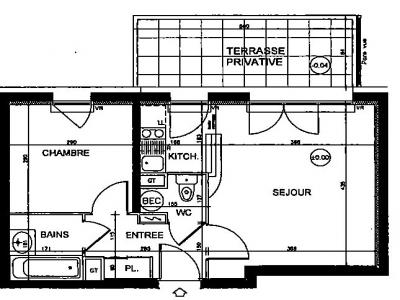
NANTES - ST THERESE/BEAUSEJOUR - appartement T1 bis au calme sur l'intérieur de l'immeuble, comprenant une entrée avec placard, un séjour sur parquet avec terrasse couverte de 9 m² exposé Ouest, une cuisine ouverte équipée (frigo, 2 plaques vitrocéramiques), 1 chambre, une salle de bains, wc. Parking couvert. Les informations sur les risques auxquels ce bien est exposé sont disponibles sur le site Géorisques: .
Retour
Autres photos
Plan
Favoris

Contacter l'agence

votre agent immobilier CABINET THIERRY (NANTES 44000)
CABINET THIERRY
du Couedic
44000 NANTES
Nous parlons :

Toutes les annonces immobilières de CABINET THIERRY
02.40.47.94.43


Recevoir des annonces similaires

Location à proximité de Nantes