recherche immobilières sur mobile

Location Appartement Nantes 1 pièce 36 m2 Loire atlantique (44000) - 638 € / mois

location appartement 36 m² région Loire atlantique

638 €/mois


Location Appartement NANTES 44000
Annonce Location Appartement Nantes 44
Louer Appartement 36 m2 Nantes
Louer Appartement Nantes Loire atlantique
Louer Appartement Nantes 638 euros

Description

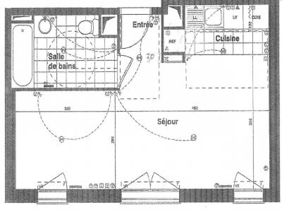
NANTES - QUARTIER ERDRE / TORTIERE . Appartement T1 comprenant : pièce principale de 26.33 m² avec possibilité coin nuit, coin cuisine aménagé et équipé (plaques vitrocéramiques, four et hotte), salle de bain avec wc. Parking extérieur. Eau froide et eau chaude comprises dans la provision pour charges. Les informations sur les risques auxquels ce bien est exposé sont disponibles sur le site Géorisques: .
Retour
Autres photos
Plan
Favoris

Contacter l'agence

votre agent immobilier CABINET THIERRY (NANTES 44000)
CABINET THIERRY
du Couedic
44000 NANTES
Nous parlons :

Toutes les annonces immobilières de CABINET THIERRY
02.40.47.94.43


Recevoir des annonces similaires

Location à proximité de Nantes