recherche immobilières sur mobile

Location Appartement Nantes 2 pièces 47 m2 Loire atlantique (44300) - 637 € / mois

location appartement 2 pièces 47 m² région Loire atlantique

637 €/mois


Location Appartement 2 pièces NANTES 44300
Annonce Location 2 pièces Appartement Nantes 44

Description

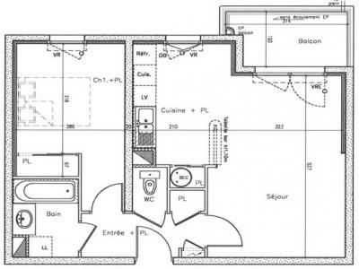
NANTES - QUARTIER VIEUX DOULON- T2 comprenant : Entrée avec placard, séjour sur parquet de 18.02 m² donnant sur balcon de 4.61m², cuisine ouverte avec placard, 1 chambre sur parquet avec placard, salle de bains, wc. Garage. CONDITIONS DE RESSOURCES - LOI SCELLIER INTERMEDIAIRE. Les informations sur les risques auxquel ce bien est exposé sont disponibles sur le site Géorisque:
Retour
Autres photos
Plan
Favoris

Contacter l'agence

votre agent immobilier CABINET THIERRY (NANTES 44000)
CABINET THIERRY
du Couedic
44000 NANTES
Nous parlons :

Toutes les annonces immobilières de CABINET THIERRY
02.40.47.94.43


Recevoir des annonces similaires

Location à proximité de Nantes