recherche immobilières sur mobile

Location Appartement Melun 3 pièces 58 m2 Seine et marne (77000) - 990 € / mois

location appartement 3 pièces 58 m² 2 chambres région Seine et marne

990 €/mois


Location Appartement 3 pièces MELUN 77000
Annonce Location 3 pièces Appartement Melun 77
Louer Appartement 58 m2 Melun
Louer Appartement Melun Seine et marne

Description

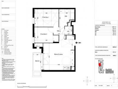
A MELUN, dans la résidence neuve ISATIS, proches de toutes les commodités, entre la forêt de Fontainebleau et le plateau de la Brie. Venez découvrir cet appartement T3 n 2401 de 58,40m² avec un balcon exposé ouest de 3,98m², situé au 3ème du bâtiment C, avec ascenseur. Il comprend un séjour avec cuisine ouverte de 25.97m², de deux chambres de 11,93m² et 10,06m², d'une salle de bain et WC séparés. Vous disposerez d'une place de parking en sous-sol portant le n°38. Chauffage et eau chaude collectifs urbain. Entretien parties communes, ascenseur et espaces verts communs, compris dans les provisions sur charges mensuelles et donnant lieu à une régularisation annuelle. Les honoraires de location TTC (à la charge du locataire) incluent le montant de rédaction des états des lieux facturé pour 175 euros TTC, après réalisation lors de l'entrée dans les lieux. Plus de détails sur notre site AFEDIM. Logement neuf . Les informations sur les risques auxquels ce bien est exposé sont disponibles sur le site Géorisques :
Retour
Autres photos
Plan
Favoris

Contacter l'agence

AFEDIM Gestion
2 Rond Point des Antons CS70304
44703 ORVAULT

Toutes les annonces immobilières de AFEDIM Gestion
08.09.10.28.80 ou 08.10.00.69.36


Recevoir des annonces similaires

Location à proximité de Melun