recherche immobilières sur mobile

Appartement à vendre Schiltigheim 4 pièces 87 m2 Bas rhin (67300) - 451030 €

vente appartement 4 pièces 87 m² 3 chambres région Bas rhin

451 030 €


Vente Appartement 4 pièces SCHILTIGHEIM 67300

Description

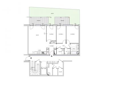
Agréable Appartement 4 pièces avec Jardin, cellier supplémentaire ( qui vous permettra un espace de rangement complémentaire ) et une place de parking au sous-sol . Cet appartement d'une surface approximative de 87 m2 est l'alliance idéale entre tranquillité, accessibilité et qualité de vie. Composé d'un grand placard à l'entrée, d'un cellier, d'un wc séparé avec douche et d'une salle de bains, de deux chambres, plus une autre pièce pouvant aussi servir de chambre, d'un très grand séjour avec cuisine ouverte. Ce bien est soumis au statut de la copropriété. Située au c?ur de Schiltigheim, la résidence bénéficie à moins de 5 minutes à pied de la rue principale et du parc du Château, elle vous offre un cadre de vie à la fois pratique et paisible. Profitez pleinement de la vie à « Schiltigheim » grâce à la proximité immédiate de toutes les commodités. Les transports sont facilement accessibles : à seulement 300 mètres, retrouvez l'arrêt de tram « Rives de l'Aar » ainsi que l'arrêt de bus « Square du Château ». Le centre de Strasbourg et la gare sont également accessibles en seulement 10 minutes à vélo. - Prix de vente honoraires inclus : 451 030E TTC Honoraires à la charge de l'acquéreur : 25 530E TTC (soit 6% du prix de vente hors honoraires, compris dans le prix de commercialisation) Prix de vente hors honoraires : 425 000E TTC Pour toutes informations supplémentaires, contactez: Sylvie FINTZ EI RSAC : 822 612 818
Retour
Autres photos
Plan
Favoris

Contacter l'agence

votre agent immobilier GEAI KW RHENAN (STRASBOURG 67100)
GEAI KW RHENAN
15 AVENUE DU RHIN
67100 STRASBOURG

Toutes les annonces immobilières de GEAI KW RHENAN
06.99.62.97.64 ou 03.88.21.21.25


Recevoir des annonces similaires

Vente à proximité de Schiltigheim