recherche immobilières sur mobile

Appartement à vendre Montignac 2 pièces 30 m2 Dordogne (24290) - 45000 €

vente appartement 2 pièces 30 m² région Dordogne

45 000 €


Vente Appartement 2 pièces MONTIGNAC 24290
Annonce Vente 2 pièces Appartement Montignac 24
Acheter Appartement 30 m2 Montignac
Acheter Appartement Montignac Dordogne
Acheter Appartement Montignac 45000 euros

Description

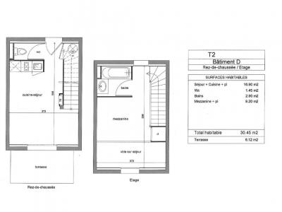
LIBRE DE TOUTE OCCUPATION au plus tard le 30/09/2026 - T2 Duplex Libre - 1 Parking Appartement T2 Duplex d'environ 30,45 m² situé dans une résidence sécurisée sur le secteur de Montignac-Lascaux. Libre de toute occupation au 30/09/2026 Composition : Séjour avec canapé gigogne Kitchenette équipée (réfrigérateur, plaque électrique, lave-vaisselle, hotte, micro-ondes, cafetière) 1 chambre en mezzanine avec lit double Salle de bain WC Terrasse 1 place de parking Informations financières : Charges de copropriété : 119,22E / mois Taxe foncière : 250E / an DPE : E Honoraires charge vendeur Points forts : Bien libre à partir du 30/09/2026 Terrasse agréable Parking inclus Résidence sécurisée Idéal investisseur
Retour
Autres photos
Plan
Favoris

Contacter l'agence

BONNEFOY IMMOBILIER
26 R Du Faubourg Bonnefoy
31000 TOULOUSE

Toutes les annonces immobilières de BONNEFOY IMMOBILIER
05.67.76.62.50


Recevoir des annonces similaires

Vente à proximité de Montignac