recherche immobilières sur mobile

Appartement à vendre Saint-bonnet-de-mure 5 pièces 108 m2 Rhone (69720) - 313000 €

vente appartement 5 pièces 108 m² 4 chambres région Rhone

313 000 €


Vente Appartement 5 pièces SAINT-BONNET-DE-MURE 69720
Annonce Vente 5 pièces Appartement Saint-bonnet-de-mure 69
Acheter Appartement 108 m2 Saint-bonnet-de-mure
Acheter Appartement Saint-bonnet-de-mure Rhone
Acheter Appartement Saint-bonnet-de-mure 313000 euros

Description

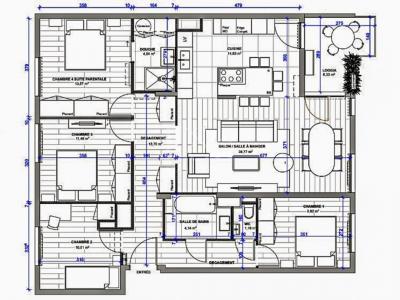
Saint Bonnet de Mure, situé au 1er étage avec ascenseur d'un immeuble de 1990 récemment ravalé, ce local professionnel à usage médical de 108 m² constitue une opportunité rare pour un projet d'habitation familiale, avec changement de destination en habitation déjà accepté. Grâce à ses beaux volumes, le bien permet l'aménagement d'un appartement spacieux de 4 chambres. Un plan d'architecte est fourni, offrant une projection chiffrée claire et rassurante d'un agencement fonctionnel, pensé pour le confort et la vie de famille. La future distribution permet d'envisager une pièce de vie conviviale et lumineuse, des chambres confortables et une organisation fluide au quotidien. Le bien est déjà équipé de la climatisation, garantissant un confort optimal en toute saison. Un balcon, un garage et une cave complètent ce bien et répondent pleinement aux besoins d'une famille. Idéalement situé à proximité immédiate du centre-ville, le bien bénéficie d'un environnement pratique et recherché, avec commerces, transports en commun et services accessibles à pied. À quelques pas, un jardin public avec aire de jeux offre un espace de détente et de loisirs parfaitement adapté aux enfants. Implanté dans une copropriété bien entretenue, ce bien réunit sécurité administrative, qualité de construction et fort potentiel, pour créer un lieu de vie familial sur mesure, alliant confort, tranquillité et vie urbaine. Les informations sur les risques auxquels ce bien est exposé sont disponibles sur le site Géorisques :
Retour
Autres photos
Plan
Favoris

Contacter l'agence

REGIE FRANCHET
2, place Bellecour
69002 LYON

Toutes les annonces immobilières de REGIE FRANCHET
04.69.84.41.32 ou 04.78.38.73.74


Recevoir des annonces similaires

Vente à proximité de Saint-bonnet-de-mure