recherche immobilières sur mobile

Location Appartement Meaux 2 pièces 44 m2 Seine et marne (77100) - 840 € / mois

location appartement 2 pièces 44 m² région Seine et marne

840 €/mois


Location Appartement 2 pièces MEAUX 77100
Annonce Location 2 pièces Appartement Meaux 77

Description

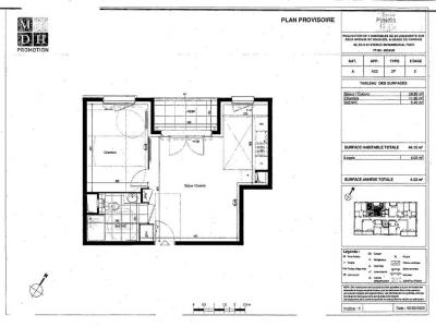
A MEAUX, RESIDENCE "LES TERRASSES DE MELDIS". Nous vous proposons un appartement T2 d'une superficie de 44.15m² situé au 2ème étage, comprenant : un séjour avec coin cuisine et accès à une loggia, une chambre avec placard, une salle d'eau avec WC. Une place de parking au sous-sol complète le bien. Chauffage et eau chaude collectif gaz, entretien parties communes, entretien ascenseur, compris dans les provisions sur charges mensuelles et donnant lieu à une régularisation annuelle. Disponible le 13/05/26. Pour plus de détails sur ce logement, vous pouvez consulter la fiche descriptive de ce bien, sur votre site internet AFEDIM. Les informations sur les risques auxquels ce bien est exposé sont disponibles sur le site Géorisques :
Retour
Autres photos
Plan
Favoris

Contacter l'agence

CM - CIC GESTION IMMOBILIERE
2 rond point des AntonsBP70904
44703 ORVAULT

Toutes les annonces immobilières de CM - CIC GESTION IMMOBILIERE
08.09.10.28.80


Recevoir des annonces similaires

Location à proximité de Meaux