recherche immobilières sur mobile

Location Appartement Nancy 3 pièces 60 m2 Meurthe et moselle (54000) - 798 € / mois

location appartement 3 pièces 60 m² 2 chambres région Meurthe et moselle

798 €/mois


Location Appartement 3 pièces NANCY 54000
Annonce Location 3 pièces Appartement Nancy 54

Description

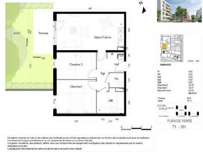
A NANCY, proche commerces et commodités dans la Résidence MOSAIC, nous vous proposons un appartement T3 n°201 de 60.62m² au rez-de-chaussée. L'appartement comprend une pièce de vie de 23.23m² avec espace cuisine aménagée donnant sur une terrasse de 8.65m² et un jardin de 26.71m². L'appartement possède également un hall avec placard, deux chambres de 12.51m² et 10.13m² et une salle de bain de 5.81m² avec baignoire et WC séparé. Box au sous-sol du bâtiment F n°533. Eau chaude et chauffage par chaudière à gaz collectif, entretien des parties communes et des espaces verts compris dans les provisions sur charges mensuelles et donnant lieu à une régularisation annuelle. Les honoraires de location sont facturés directement au locataire par le partenaire pour 489 E TTC. Quant aux honoraires de rédaction des états des lieux, ils sont facturés par AFEDIM Gestion pour 183 E TTC, après réalisation, lors de l'entrée dans les lieux. Plus de détails sur notre site internet AFEDIM. Les informations sur les risques auxquels ce bien est exposé sont disponibles sur le site Géorisques :
Retour
Autres photos
Plan
Favoris

Contacter l'agence

CM - CIC GESTION IMMOBILIERE
2 rond point des AntonsBP70904
44703 ORVAULT

Toutes les annonces immobilières de CM - CIC GESTION IMMOBILIERE
08.09.10.28.80


Recevoir des annonces similaires

Location à proximité de Nancy