recherche immobilières sur mobile

Location Appartement Ponts-de-ce 2 pièces 44 m2 Maine et loire (49130) - 605 € / mois

location appartement 2 pièces 44 m² région Maine et loire

605 €/mois


Location Appartement 2 pièces PONTS-DE-CE 49130
Annonce Location 2 pièces Appartement Ponts-de-ce 49

Description

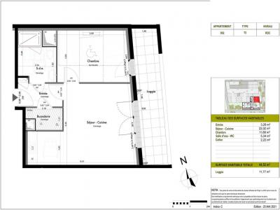
AU PONTS DE CE, dans la résidence neuve INTUITION, nous vous proposons un appartement T2 n°C002, situé au rez-de-chaussée. Il comprend une entrée, un séjour/cuisine (équipée d'une plaque de cuisson et d'un four) donnant sur une loggia de 11.77m², une chambre, une buanderie, une salle d'eau avec WC. Un cellier portant le numéro C002 situé au rez-de-chaussée. Eau chaude et chauffage individuels gaz. Entretien parties communes, ascenseur et espaces verts communs, compris dans les provisions sur charges mensuelles et donnant lieu à une régularisation annuelle. Les honoraires de location 489E TTC (à la charge du locataire) incluent le montant de rédaction des états des lieux facturé pour 133 euros TTC, après réalisation lors de l'entrée dans les lieux. Plus de détails sur notre site AFEDIM Plus de détails sur notre site internet AFEDIM. Les informations sur les risques auxquels ce bien est exposé sont disponibles sur le site Géorisques :
Retour
Autres photos
Plan
Favoris

Contacter l'agence

AFEDIM Gestion
2 Rond Point des Antons CS70304
44703 ORVAULT

Toutes les annonces immobilières de AFEDIM Gestion
08.09.10.28.80 ou 08.10.00.69.36


Recevoir des annonces similaires

Location à proximité de Ponts-de-ce