recherche immobilières sur mobile

Location Appartement Perpignan 2 pièces 38 m2 Pyrenees orientales (66100) - 585 € / mois

location appartement 2 pièces 38 m² région Pyrenees orientales

585 €/mois


Location Appartement 2 pièces PERPIGNAN 66100
Annonce Location 2 pièces Appartement Perpignan 66

Description

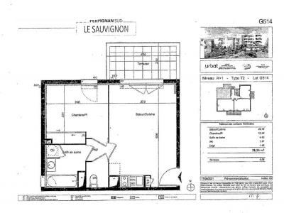
PERPIGNAN, dans la résidence DOMAINE MAS ROUS LE SAUVIGNON, nous vous proposons un logement T2 N° G514 de 38.36 m² sis au 1er étage. Il se compose, d'une pièce de vie avec cuisine ouverte sur séjour et donnant sur une terrasse de 8.08 m², une chambre avec placard, une salle de bains et wc séparé. En extérieur, un parking N° 83. Eau chaude et chauffage (individuel). Entretien parties communes, entretien ascenseur et espaces verts communs, compris dans les provisions sur charges mensuelles et donnant lieu à une régularisation annuelle. Les honoraires de location 425euros TTC (à la charge du locataire) incluent le montant de rédaction des états des lieux facturé pour 116euros TTC, après réalisation lors de l'entrée dans les lieux. Disponible le 07/05/2026. Pour plus de détails sur ce logement, vous pouvez consulter la fiche descriptive de ce bien, sur votre site internet AFEDIM. Les informations sur les risques auxquels ce bien est exposé sont disponibles sur le site Géorisques :
Retour
Autres photos
Plan
Favoris

Contacter l'agence

AFEDIM Gestion
2 Rond Point des Antons CS70304
44703 ORVAULT

Toutes les annonces immobilières de AFEDIM Gestion
08.09.10.28.80 ou 08.10.00.69.36


Recevoir des annonces similaires

Location à proximité de Perpignan