recherche immobilières sur mobile

Location Appartement Ormesson-sur-marne 2 pièces 41 m2 Val de Marne (94490) - 855 € / mois

location appartement 2 pièces 41 m² région Val de marne

855 €/mois


Location Appartement 2 pièces ORMESSON-SUR-MARNE 94490
Annonce Location 2 pièces Appartement Ormesson-sur-marne 94

Description

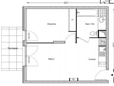
Charmant T2 avec terrasse et parking - Idéal premier logement Découvrez ce bel appartement 2 pièces de 40,57 m², situé en rez-de-chaussée au sein du bâtiment A, offrant un cadre de vie agréable et fonctionnel. Dès l'entrée, vous serez séduit par un séjour lumineux ouvrant sur une agréable terrasse de 6,78 m², parfaite pour profiter des beaux jours. La cuisine, ouverte sur le séjour, est équipée d'un plan de travail, d'un évier avec robinet, d'une plaque de cuisson, d'une hotte ainsi que de meubles de rangement hauts et bas. L'espace nuit se compose d'une chambre confortable avec placard intégré, ainsi que d'une salle de bain avec WC. Une place de parking vient compléter ce bien, apportant un véritable confort au quotidien. Côté transports, vous bénéficierez d'un accès rapide : à 20 minutes de la gare de Sucy (en bus) à 30 minutes de la gare de Champigny (en bus) Un bien idéal pour une personne seule ou un couple, alliant praticité, confort et accessibilité. À visiter sans tarder.
Retour
Autres photos
Plan
Favoris

Contacter l'agence

BONAPART IMMOBILIER 3EME
57 rue de Turbigo
75003 PARIS

Toutes les annonces immobilières de BONAPART IMMOBILIER 3EME
01.83.62.01.14 ou 06.67.08.66.98


Recevoir des annonces similaires

Location à proximité de Ormesson-sur-marne