recherche immobilières sur mobile

Terrain à vendre Groix 337 m2 Morbihan (56590) - 145990 €

vente terrain 337 m² région Morbihan

145 990 €


Vente Terrain GROIX 56590
Annonce Vente Terrain Groix 56
Acheter Terrain 337 m2 Groix
Acheter Terrain Groix Morbihan
Acheter Terrain Groix 145990 euros

Description

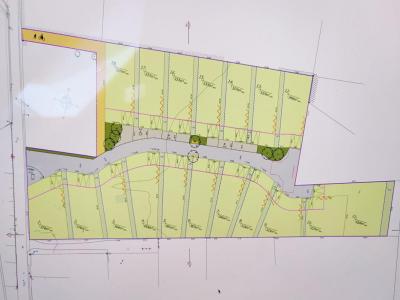
Vous rêvez de construire votre maison sur une île magnifique Ne cherchez plus! Je vous propose un terrain viabilisé dans le Lotissement Le Ponant situé sur l'île de Groix en Bretagne. Lot 18 - Superficie 337m2. Viabilisé : électricité, eau, assainissement Emplacement privilégié dans un lotissement calme et verdoyant Proche des commodités et des plages Libre de constructeur - Possibilité accompagnement constructeur partenaire (type de maison en photo, non contractuel). L'île de Groix est réputée pour sa beauté naturelle préservée, ses plages de sable fin, et son atmosphère paisible. C'est l'endroit idéal pour vivre en harmonie avec la nature, tout en profitant des avantages d'une vie insulaire. Ne ratez pas cette opportunité unique d'acquérir un terrain dans un cadre exceptionnel. Pour visiter et vous accompagner dans votre projet, contactez Yves Leblanc, au 06 11 74 50 22 ou par courriel à Cette présente annonce a été rédigée sous la responsabilité éditoriale de Yves Leblanc agissant sous le statut d'agent commercial immatriculé au RSAC LORIENT n°443 702 196 auprès de la SAS PROPRIETES PRIVEES, Réseau national immobilier, au capital de 40 000 euros, 44 Allée des Cinq Continents, 44120 VERTOU, RCS NANTES n° 487 624 777, Carte professionnelle T et G n° CPI 4401 2016 000 010 388 CCI Nantes, Garantie GALIAN, 89 rue La Boétie, 75008 Paris. Mandat réf : 446809 - Le professionnel garantit et sécurise votre projet immobilier. Prix : 145.990 Euros HAI dont 4,28% d'honoraires d'agence TTC à la charge de l'acquéreur soit 140.000 Euros hors honoraires. Les informations sur les risques auxquels ce bien est exposé sont disponibles sur le site Géorisques : (4.28 % honoraires TTC à la charge de l'acquéreur.) Yves LEBLANC (EI) Agent Commercial - Numéro RSAC : LORIENT 443 702 196 - .
Retour
Autres photos
Plan
Favoris

Contacter l'agence

votre agent immobilier Agence PROPRIETES PRIVEES FNAIM (BASSE-GOULAINE 44115)
Agence PROPRIETES PRIVEES FNAIM
15 RUE DE L'ATLANTIQUE
44115 BASSE-GOULAINE
Nous parlons :

Toutes les annonces immobilières de Agence PROPRIETES PRIVEES FNAIM
06.11.74.50.22 ou 08.05.13.00.17


Recevoir des annonces similaires

Vente à proximité de Groix