recherche immobilières sur mobile

Terrain à vendre Vraie-croix 528 m2 Morbihan (56250) - 66000 €

vente terrain 528 m² région Morbihan

66 000 €


Vente Terrain VRAIE-CROIX 56250
Annonce Vente Terrain Vraie-croix 56

Description

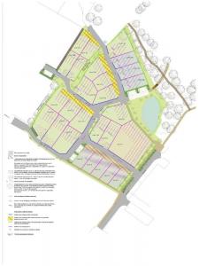
La Vraie Croix - Terres de Bourg - 1 Terrain DERNIERE OPPORTUNITE - Lot 23 : 528m² au prix de 66 000E (pour les Primo accédants) et de 72 600 E (pour les non-primo) Uniquement en Résidence principale Pour toutes questions n'hésitez pas à contacter : Morbihan Habitat au 02 97 40 22 99 ou par mail :
Retour
Autres photos
Plan
Favoris

Contacter l'agence

BRETAGNE SUD HABITAT
6 avenue Edgar Degas
56008 VANNES

Toutes les annonces immobilières de BRETAGNE SUD HABITAT
02.97.40.22.99 ou 02.97.43.82.00


Recevoir des annonces similaires

Vente à proximité de Vraie-croix