recherche immobilières sur mobile

Terrain à vendre Guer 503 m2 Morbihan (56380) - 40441 €

vente terrain 503 m² région Morbihan

40 441 €


Vente Terrain GUER 56380
Annonce Vente Terrain Guer 56

Description

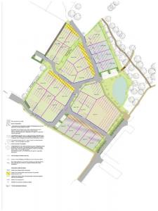
GUER - Les grandes Pommeries 2 - 2 Terrains Vous avez un projet de construction dans le Morbihan ? Découvrez nos 2 terrains à bâtir entièrement viabilisés et libres de constructeur, disponibles au c?ur du lotissement « Les Grandes Pommeries 2 » à Guer. Lot 1 : 503 m² au prix de 40 441 E Lot 2 : 529m² au prix de 42 532E (+ frais de Notaire d'environ 8 %) Pour toutes questions n'hésitez pas à contacter : Morbihan Habitat au 02 97 40 22 99 ou par mail :
Retour
Autres photos
Plan
Favoris

Contacter l'agence

BRETAGNE SUD HABITAT
6 avenue Edgar Degas
56008 VANNES

Toutes les annonces immobilières de BRETAGNE SUD HABITAT
02.97.40.22.99 ou 02.97.43.82.00


Recevoir des annonces similaires

Vente à proximité de Guer