recherche immobilières sur mobile

Terrain à vendre Inzinzac-lochrist 379 m2 Morbihan (56650) - 66800 €

vente terrain 379 m² région Morbihan

66 800 €


Vente Terrain INZINZAC-LOCHRIST 56650
Annonce Vente Terrain Inzinzac-lochrist 56

Description

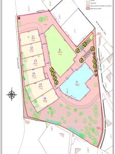
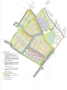
INZINZAC - La Sapinière - 5 Terrains À Inzinzac nous vous proposons 6 terrains à bâtir viabilisés pour donner vie à votre projet de construction, au c?ur d'une commune dynamique et familiale. Inzinzac-Lochrist dispose d'un accès rapide aux axes routiers et aux services urbains, et est située à moins de 15 minutes d'Hennebont. Vous profitez de toutes les commodités des villes voisines. Les lots disponibles à la vente : - Lot 1 - 349 m² au prix de 62 500E - RESERVE - Lot 2 - 379 m² au prix de 66 800E - Lot 3 - 399 m² au prix de 70 000E - Lot 4 - 405 m² au prix de 71 000E - Lot 5 - 505 m² au prix de 78 000E - Lot 6 - 446 m² au prix de 69 000E (+ frais de Notaire d'environ 8 %) Pour toutes questions n'hésitez pas à contacter : Morbihan Habitat au 02 97 40 22 99 ou par mail :
Retour
Autres photos
Plan
Favoris

Contacter l'agence

BRETAGNE SUD HABITAT
6 avenue Edgar Degas
56008 VANNES

Toutes les annonces immobilières de BRETAGNE SUD HABITAT
02.97.40.22.99 ou 02.97.43.82.00


Recevoir des annonces similaires

Vente à proximité de Inzinzac-lochrist