recherche immobilières sur mobile

Location Appartement Montpellier 1 pièce 28 m2 Herault (34090) - 615 € / mois

location appartement 28 m² région Herault

615 €/mois


Location Appartement MONTPELLIER 34090

Description

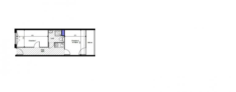
3B7 IDEAL CAMPUS - Située au coeur d'un quartier dynamique et étudiant proche des grandes écoles et universités de Montpellier. A proximité de la station de tramway Ligne 1 Saint - Eloi, qui relie la Gare Saint Roch à Gare Saint Roch ou mousson en passant par les Hôpitaux-Facultés, le centre-ville, notamment Antigone et la place de la Comédie. T1 meublé, comprenant : Salle de bain individuelle avec douche, lavabo et toilettes, Coin cuisine équipé, 1 chambre individuelle et possibilité pièce principale ou 2ème chambres le tout meublé (bureau, lit, Armoire...) POSSIBILITE DE LOCATION DE MEUBLE POUR 109 EUROS PAR MOIS. Eau chaude + froide + chauffage et électricité inclus dans les charges. Consommation d'énergie totale entre 200 et 320 euros par an (prix moyens des énergies indexés au 1.1.2021). ZONE SOUMISE A ENCADREMENT DES LOYERS LOYER DE REFERENCE MAJORE (LOYER DE BASE A NE PAS DEPASSER) : 617.76EUR euros LOYER DE BASE : 511 euros Les informations sur les risques auxquels ce bien est exposé sont disponibles sur le site Géorisques : www. georisques. gouv. fr
Retour
Autres photos
Plan
Favoris

Contacter l'agence

CONFIANCE IMMOBILIER MONPLAISIR LOCATION
108, avenue des frères Lumière
69008 LYON

Toutes les annonces immobilières de CONFIANCE IMMOBILIER MONPLAISIR LOCATION
04.72.78.89.87


Recevoir des annonces similaires

Location à proximité de Montpellier