Maison à vendre Labruguiere 4 pièces 86 m2 Tarn (81290) - 178014 €
vente maison 4 pièces 86 m² 3 chambres région Tarn
178 014 €
Description
Modèle MERLOT 86 m² : L'espace familial, sans m² perdu à partir de 119 697 E assurance dommage ouvrage compris.
Devenez propriétaire d'une maison neuve, spacieuse et conçue pour la vie de famille. Idéal pour un premier achat ou une installation sereine, le modèle Merlot offre une distribution intelligente pour optimiser votre quotidien et votre budget.
Un plan optimisé pour le confort familial :
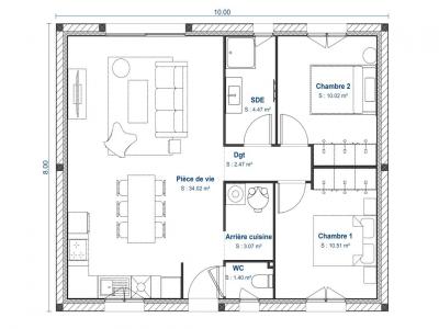
- Très vaste pièce de vie de 40 m² : espace ouvert, traversant et lumineux avec cuisine américaine intégrée.
- Côté nuit fonctionnel : 3 chambres confortables (11.00 m², 10.51 m² et 10.50 m²) idéalement réparties.
- Équipements complets : Salle d'eau centrale, WC séparés et une arrière-cuisine/cellier de 3.42 m².
- Performance : Isolation haute performance et normes RE2020 pour des économies durables.
Un projet sécurisé et clé en main :
- Accompagnement complet : Recherche terrain, financement et permis de construire.
- Sérénité totale : Garanties décennale et dommage-ouvrage incluses.
- Projet performant, confortable et accessible pour votre famille.
Situé sur la charmante commne de Labruguière, petite ville charmante et dynamique, à moins d'1 heure de Toulouse. Ce magnifique terrain viabilisé nous est proposé par un de nos partenaire foncier, il bénéficie d'une magnifique vue sur la montagne noire.
Assainissement individuelle.
Annonce Pro
Surface86 m2
Pièces4
Chambres3
Séjour40 m2
DPEA
GESA
Référence19079667 - AG-LABRUGUIERE-T4
Publiée le20/04/2026
Modifiée le13/05/2026
Retour
Autres photos
Plan
Favoris
Contacter l'agence
LES DEMEURES DU PASTEL 41 AVENUE SAINT EXUPERY 81600 GAILLAC
X FermerUtilisation des cookies En poursuivant votre navigation vous acceptez l'utilisation des cookies ou technologies similaires pour disposer de services et d'offres adaptés à vos centres d'intérêts Pour plus d'informations, gérer ou modifier les paramètres, cliquez ici