recherche immobilières sur mobile

Location Appartement Clermont-ferrand 1 pièce 28 m2 Puy de dome (63000) - 445 € / mois

location appartement 28 m² région Puy de dome

445 €/mois


Location Appartement CLERMONT-FERRAND 63000
Annonce Location Appartement Clermont-ferrand 63
Louer Appartement 28 m2 Clermont-ferrand

Description

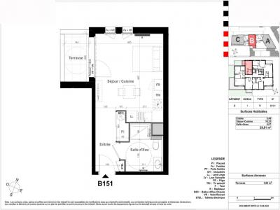
A Clermont Ferrand, dans le bâtiment B de la résidence neuve VERS'O, nous vous proposons un appartement T1, d'une superficie de 28.81 m² situé au 1er étage. Il se compose d'un séjour cuisine de 18.25 m² donnant sur une terrasse de3.92m², d'une entrée avec rangement et d'une salle d'eau avec WC. Eau chaude et chauffage (individuel). Entretien parties communes, entretien ascenseur et espaces verts communs, compris dans les provisions sur charges mensuelles et donnant lieu à une régularisation annuelle. Les honoraires de location TTC (à la charge du locataire) incluent le montant de rédaction des états des lieux facturé pour 87euros TTC, après réalisation lors de l'entrée dans les lieux. Disponible le 30/04/2026. Pour plus de détails sur ce logement, vous pouvez consulter la fiche descriptive de ce bien, sur votre site internet AFEDIM. Les informations sur les risques auxquels ce bien est exposé sont disponibles sur le site Géorisques :
Retour
Autres photos
Plan
Favoris

Contacter l'agence

AFEDIM Gestion
2 Rond Point des Antons CS70304
44703 ORVAULT

Toutes les annonces immobilières de AFEDIM Gestion
08.09.10.28.80 ou 08.10.00.69.36


Recevoir des annonces similaires

Location à proximité de Clermont-ferrand