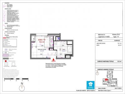
A METZ, dans la résidence L'OLYMPE, nous vous proposons un logement T1 N°01A303 de 19.30 m² au 3ème étage avec ascenseur. Il se compose, d'une pièce de vie de 13.10 m² avec cuisine ouverte sur séjour, une salle d'eau et WC de 6.2 m². Eau chaude et chauffage (individuel). Entretien parties communes, entretien ascenseur et espaces verts communs, compris dans les provisions sur charges mensuelles et donnant lieu à une régularisation annuelle. Les honoraires de location 213euros TTC (à la charge du locataire) incluent le montant de rédaction des états des lieux facturé pour 58euros TTC, après réalisation lors de l'entrée dans les lieux. Disponible le 13/06/2026. Pour plus de détails sur ce logement, vous pouvez consulter la fiche descriptive de ce bien, sur votre site internet AFEDIM.
Les informations sur les risques auxquels ce bien est exposé sont disponibles sur le site Géorisques :
Annonce Pro
Surface19 m2
Pièce1
Séjour13 m2
DPEC
GESA
Référence19080186 - 0067205
Publiée le20/04/2026
BarèmeVoir le barème des honoraires
Retour
Autres photos
Plan
Favoris
Contacter l'agence
AFEDIM Gestion 2 Rond Point des Antons CS70304 44703 ORVAULT
X FermerUtilisation des cookies En poursuivant votre navigation vous acceptez l'utilisation des cookies ou technologies similaires pour disposer de services et d'offres adaptés à vos centres d'intérêts Pour plus d'informations, gérer ou modifier les paramètres, cliquez ici